Makléř: Jan Štěpánek
Telefon: 721 931 ...
E-mail: jan@ste ...
Zobrazit celý kontaktTelefon: 721 931 619
E-mail: jan@stepanekreality.cz
Nemovitost nabízí
Ing. Jan Štěpánek - Realitní služby
Šrámkova 327, Zliv
Zobrazit kontakt na RK
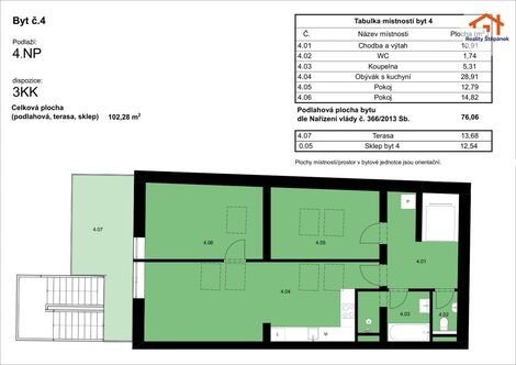
Rezidence u Srdíčka se nachází na Lannově třídě, 300 metrů od historického centra. Stavba je celá orientována do vnitrobloku a nabízí tak odpočinek od rušného městského života. Na maximální klid cílí i dispozice domu pouze 1 byt na každém patře. Tento byt s dispozicí 3+KK se nachází ve 4.NP. Celková plocha je složena z podlahové plochy bytu 76,06 m, terasy 13,68 m a sklepu 12,54 m. Jedná o zcela novou bytovou jednotku. Při včasné rezervaci budou umožněny klientské změny a kupující tak může získat byt s vybavením a materiály na míru dle svých představ. Ze stávající stavby budou zachovány pouze nosné konstrukce 1. a 2. podlaží. V těchto podlažích budou umístěny dva kompletně rekonstruované byty. Ve 3. a 4. NP vzniknou nástavbou dvě nové bytové jednotky. Nově bude instalováno venkovní schodiště a výtah na čip ustící přímo do domovní předsíně, čímž odpadne údržba společných prostor. Kotelna, podlahové topení, rozvody vody a energií, venkovní zateplení, střecha, okna a interiéry budou kompletně zhotoveny podle současných standardů a norem. Dokončení a kolaudace jsou plánovány na Q4 2027. Více informací je možné zjistit telefonicky, na osobní schůzce či na webu fineflats.cz/u-srdicka <a href="https://www.eurobydleni.cz/byty/2_kk/praha-4/obec-michle/pronajem/"><strong>Pronájem bytu 2+kk Praha 4, Michle</strong></a>
Podkrovní 3+kk, 93 m2, Skuherského, České Budějovice
Nabízíme k prodeji podkrovní byt 3+kk, zděný dům ve skvělé lokalitě centra Českých Budějovic. Bytový dům se nachází na rohu ulice Skuherského a…
Prodej bytu 3+kk, Lannova tř., České Budějovice
Rezidence u Srdíčka se nachází na Lannově třídě, 300 metrů od historického centra. Stavba je celá orientována do vnitrobloku a nabízí tak odpočinek…
Prodej bytu 3+kk České Budějovice na Eurobydleni.cz