Makléř: Eva Kubátová
Telefon: 725 967 ...
E-mail: eva.kub ...
Zobrazit celý kontaktTelefon: 725 967 067
E-mail: eva.kubatova@sorent.cz
Nemovitost nabízí
SORENT – CB spol. s r.o.
Lannova tř.14/9, 370 01 České Budějovice
Zobrazit kontakt na RK
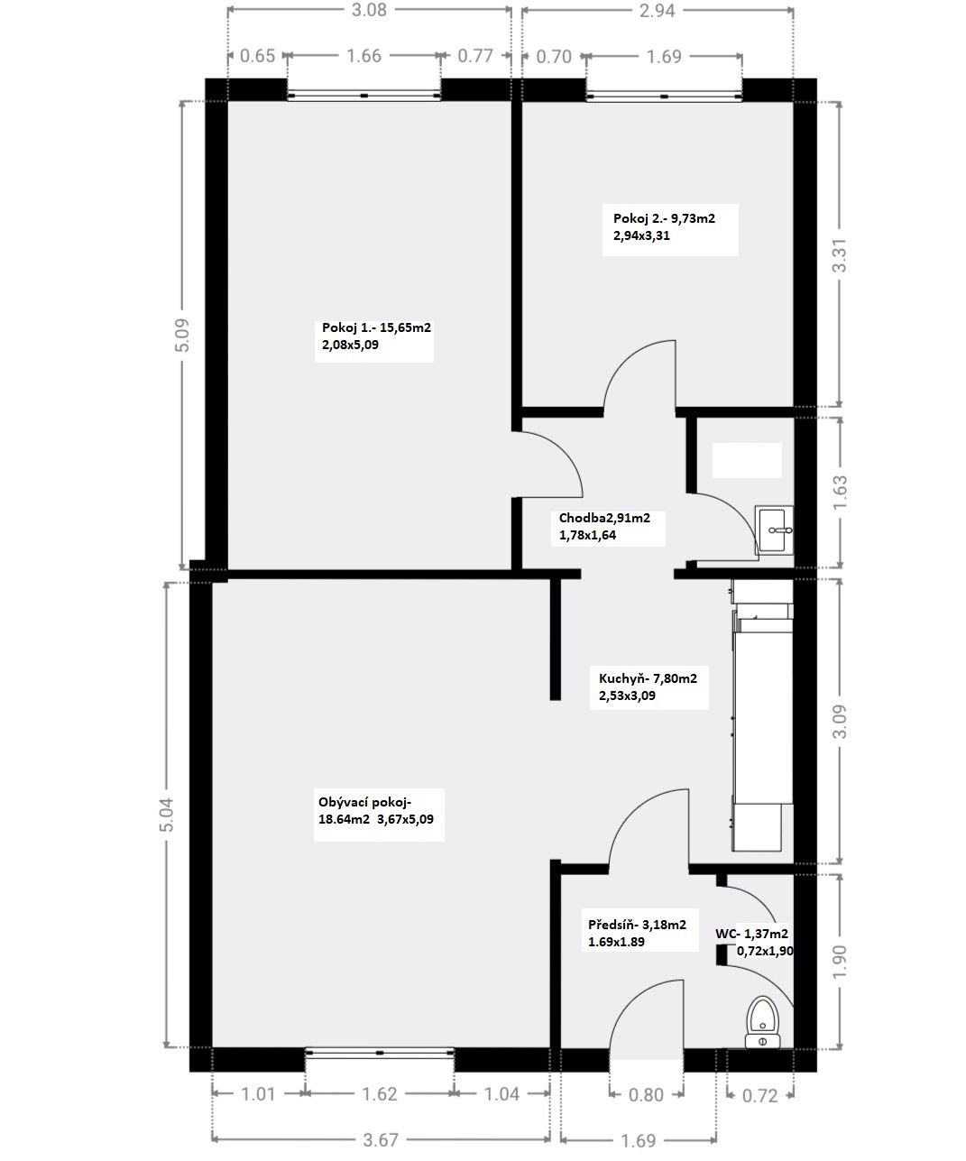
Prostorný byt 3+1 s balkonem a podílem na zahradě v klidné části, lokalita Čtyři Dvory. Ideální pro rodinu, která hledá pohodlí, prostor a blízkost centra. ________________________________________ Nabízíme výhradně k prodeji prostorný byt o dispozici 3+1 s balkonem, který se nachází v 1. patře rodinného domu v klidné a vyhledávané lokalitě Čtyři Dvory. Byt o výměře cca 66 m2 nabízí příjemné a praktické zázemí pro rodinné bydlení. Dispozice poskytuje dostatek prostoru pro každodenní život i soukromí jednotlivých členů domácnosti. Součástí bytu je balkon s výhledem do zahrady. Kuchyňská linka je vyrobena na míru truhlářem a vybavena kvalitními spotřebiči. Koupelna byla zachována v původním uspořádání. Vytápění je zajištěno vlastním plynovým kotlem s novými rozvody. Velkým benefitem je podíl na zahradě o celkové výměře cca 200 m2, která nabízí prostor pro děti, relaxaci i společné chvíle s rodinou. Součástí zahrady je také praktická stavba, kterou lze využít jako sklad, dílnu nebo zázemí pro posezení. Dům navíc prochází dalším zhodnocením - aktuálně bude realizováno zateplení a nová fasáda z přední části domu. V domě jsou celkem 4 bytové jednotky a nyní se řeší rozdělení domu včetně podílů na zahradě a společných částech domu a půdy. Stáří střechy 17 let. Jedná se o ideální volbu pro rodinu, která hledá klidné bydlení s dobrou dostupností do centra města. ________________________________________
Prodej, Byt 3+1, České Budějovice
V zastoupení majitele nabízíme prodej prostorného družstevního bytu 3+1 o užitné ploše 70 m2 ve vyhledávané lokalitě na Pražském sídlišti v Českých…
Prodej bytu 3+1 66 m2, České Budějovice 3
Ve výhradním zastoupení nabízíme ke koupi bytovou jednotku v osobním vlastnictví, která se nachází v klidné části Českých Budějovic, Plzeňské ulici.…