Makléř: Eva Kubátová
Telefon: 725 967 ...
E-mail: eva.kub ...
Zobrazit celý kontaktTelefon: 725 967 067
E-mail: eva.kubatova@sorent.cz
Nemovitost nabízí
SORENT – CB spol. s r.o.
Lannova tř.14/9, 370 01 České Budějovice
Zobrazit kontakt na RK
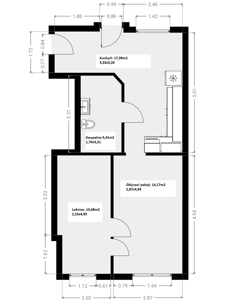
Byt 2+1 s terasou a přímým vstupem na zahradu v žádané lokalitě Čtyři Dvory. Ideální startovací bydlení nebo menší rodinu. ________________________________________ Nabízíme výhradně k prodeji byt o dispozici 2+1 s terasou a přímým vstupem na zahradu, který se nachází v přízemí rodinného domu v atraktivní lokalitě Čtyři Dvory. Byt o výměře cca 50 m2 prošel kompletní rekonstrukcí a nabízí velmi příjemné a praktické bydlení. Velkou výhodou je propojení interiéru s venkovním prostorem - z terasy vstoupíte přímo na zahradu, což ocení zejména rodiny s dětmi nebo ti, kdo mají rádi klid a soukromí. Součástí rekonstrukce jsou nové betonové podlahy, rozvody elektřiny i vytápění. Kuchyňská linka je vyrobena na míru truhlářem a vybavena kvalitními spotřebiči. Koupelna je moderně řešena se sprchovým koutem, podlahové vytápění. V bytě jsou instalována nová plastová okna i vstupní dveře. Vytápění je zajištěno elektrickými panely. K bytu náleží podíl na zahradě o celkové výměře cca 200 m2, která poskytuje dostatek prostoru pro odpočinek i praktické využití. Na zahradě se nachází také nově vybudovaná stavba vhodná jako sklad, dílna nebo místo pro posezení. Také zde bude realizováno zateplení a nová fasáda z přední části domu, což přispěje k dalšímu zhodnocení nemovitosti. V domě jsou celkem 4 byty a nyní se řeší rozdělení domu na 4 samostatné bytové jednotky včetně podílů na zahradě a společných částech domu a půdy. Stáří střechy 17 let. Tento byt je ideální jako startovací bydlení nebo pro menší rodinu, která ocení klid, soukromí a vlastní venkovní prostor.
Prodej bytu 2+1, 72 m2, České Budějovice 5, ul. Ledenická
Nabízíme k prodeji světlý a velmi příjemný byt v 1. patře zrekonstruovaného bytového domu. Byt vyniká praktickou dispozicí a orientací na východ a…
Prodej bytu 2+1, 45 m2, České Budějovice, L. B. Schneidera
Nabízíme k prodeji útulný byt o dispozici 2+1 s užitnou plochou 45 m2. Velkým benefitem je vlastní parkování zabezpečené bránou na elektronické…