Makléř: Tadeáš Vaverka
Telefon: 607 933 ...
E-mail: vaverka ...
Zobrazit celý kontaktTelefon: 607 933 667
E-mail: vaverka@justo.cz
Nemovitost nabízí
JUSTO Česká republika
Korunní 2569/108, 101 00 Praha 10
Zobrazit kontakt na RK
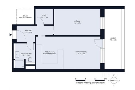
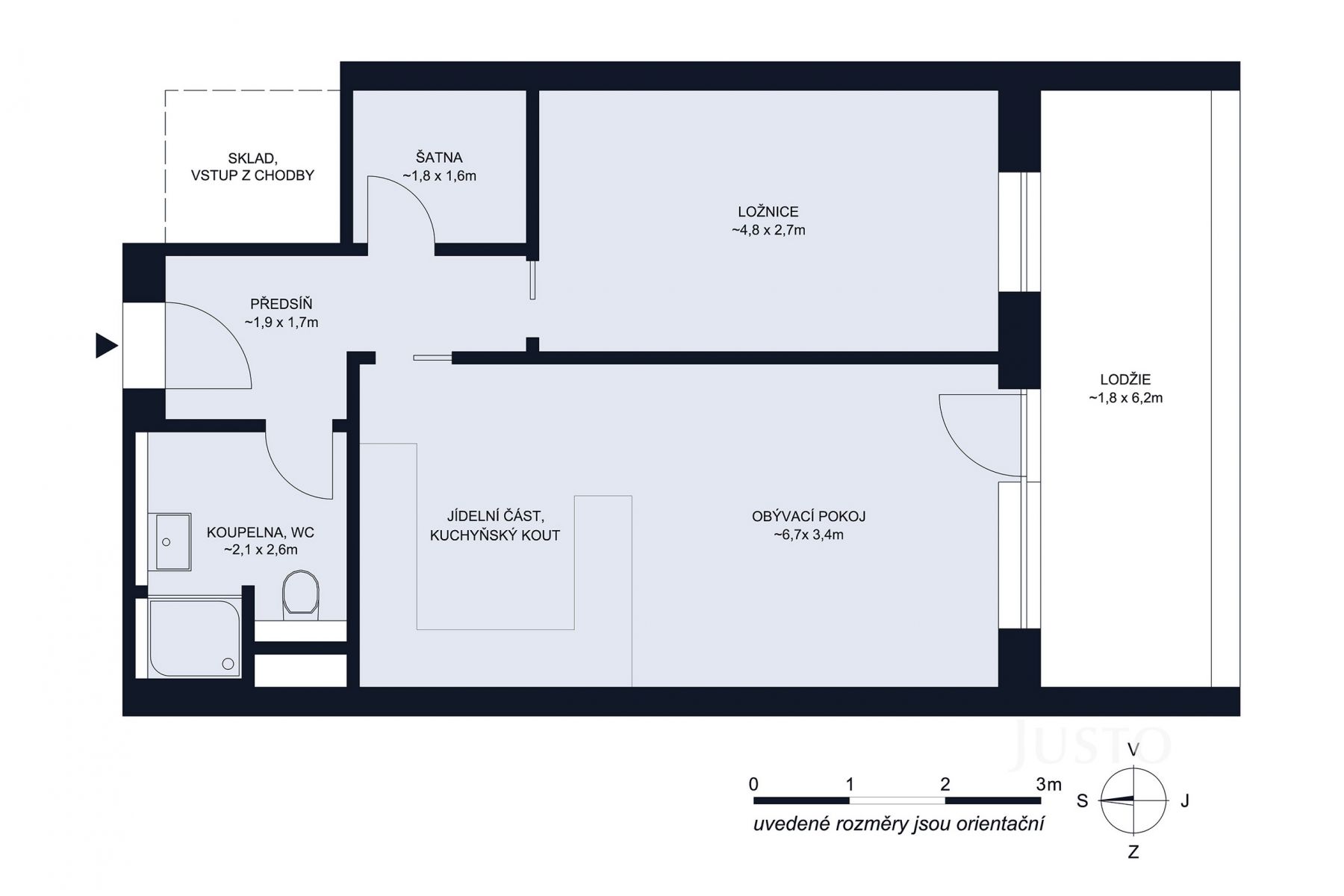
Novostavba. 2+kk s velkou lodžií. Pro bydlení i na investici. Soukromé parkování v ceně. TOP vybavení na míru. Klidná lokalita na okraji města. Ve výhradním zastoupení majitelky nabízíme k prodeji moderní byt 2+kk o ploše 52,4 m (49,15 m má byt, 3,25 m sklep), navíc s prostornou lodžií 11,15 m a vlastním parkovacím stáním v klidné části Českých Budějovic - v Českém Vrbném. Byt se nachází v posledním, tedy 6. podlaží novostavby cihlového domu zkolaudovaného v roce 2023. Dispozice bytu klade důraz na úložné prostory obývací pokoj s kuchyňským koutem a jídelní částí tvoří centrální prostor pro odpočinek. Z předsíně navazuje ložnice, samostatná šatna a koupelna se sprchovým koutem a toaletou. V předsíni si odložíte kabáty, boty a využijete praktické sezení s úložnými prostory na míru. Moderní kuchyňská linka je kompletně vybavena všemi spotřebiči lednicí, indukční varnou deskou, troubou, mikrovlnkou a myčkou. Interiér dává důraz na dřevěné dekory a kvalitní provedení detailů. Majitelka byt vybavila vestavěným nábytkem. V obývací části můžete své oblíbené pořady sledovat na velké TV. Z obýváku vedou dveře na jižně orientovanou lodžii s výhledem na okolní zástavbu. Pro uskladnění sezónních věcí nebo sportovního vybavení slouží sklep přímo na patře. Auto zaparkujete na vlastním parkovacím stání u domu. Výhodou je také bezbariérový přístup a moderní výtah. V docházkové vzdálenosti od bytu najdete hypermarket Globus s nákupním centrem Géčko, další obchody jako Bauhaus či Kaufland, restaurace, lékařský dům, ale i zastávky MHD. Výborné dopravní spojení do centra města i na hlavní tahy zaručuje pohodlný životní styl jak pro jednotlivce, tak pro páry. Na procházku můžete k oblíbeným Vrbenským rybníkům. Chcete se přijít podívat na prohlídku bytu? Potřebujete doplnit informace a zodpovědět dotazy? Vyplňte prosím formulář u inzerátu. Dostanete odpověď s veškerými informacemi do 20 minut na e-mail, který uvedete. (Zkontrolujte si, prosím, i složky "Spam" a "Nevyžádaná pošta". Občas se tam e-mail může zatoulat.)
Prodej, Byt 2+kk, České Budějovice
Tým Bartlgroup vám představujeme nový Rezidenční projekt U Stromovky, který přináší do Českých Budějovic novou úroveň moderního a úsporného bydlení.…
Prodej bytu 2+kk 56 m2, České Budějovice 2
Byt dispozice 2+kk se nachází v bytovém domě po kompletní rekonstrukci v klidné části města České Budějovice. Dispozice bytu nabízí prostornou…
Prodej bytu 2+kk České Budějovice na Eurobydleni.cz