Aktuálně můžete v lokalitě České Budějovice vybírat z nabídky 215 bytů.
Přehled nemovitostí: prodej byty > 3+1 Zpět na přehled nabídek

Prodej bytu 3+1, 67,01 m, České Budějovice

neuvedeno

neuvedeno

osobní

G - Mimořádně nehospodárná

N33

22.03.2026

Cena: 3995000 CZK / objekt
Poznámka k ceně: Cena za nemovitost je konečná - včetně provize, DPH, včetně poplatků, včetně právního servisu. 1

Poslat dotaz k nabídce
Zásady používání osobních údajů

Prodejce

Makléř: Lukáš Soldát

Telefon: 723 301 ...

E-mail: soldat@ ...

Zobrazit celý kontakt

Nemovitost nabízí

XPP Reality s.r.o.

Myslíkova 174/23, Praha 1

Zobrazit kontakt na RK

Zobrazit všechny nabídky RK

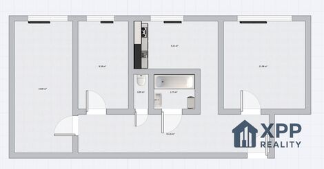
Nabízíme k prodeji byt v osobním vlastnictví o dispozici 3+1 a celkové ploše 67,01 m, který se nachází v 9. nadzemním podlaží panelového domu s výtahem v ulici V. Volfa v Českých Budějovicích. Byt aktuálně prochází kompletní rekonstrukcí. Nabídková cena reflektuje současný stav nemovitosti a ponechává prostor pro dokončení rekonstrukce dle vlastních představ nového majitele. V rámci úprav jsou prováděny nové rozvody elektroinstalace, nové podlahy a omítky. Součástí rekonstrukce je také vybudování nového zděného jádra s novou koupelnou, samostatnou toaletou a novou kuchyní. Z tohoto důvodu nejsou v inzerci použity aktuální fotografie interiéru, ale vizualizace budoucí podoby bytu. Dispozice bytu nabízí obývací pokoj, kuchyni, dvě samostatné ložnice, koupelnu, samostatné WC a vstupní chodbu. Jednotka se nachází v nejvyšším podlaží, což zajišťuje dostatek světla, příjemný výhled do okolí a pocit většího soukromí. K bytu náleží sklepní kóje umístěná v přízemí domu, která poskytuje další úložný prostor. Parkování je možné v okolí domu. Dům je napojen na veškeré inženýrské sítě elektřinu, dálkový vodovod a kanalizaci. Vytápění je řešeno dálkově. Lokalita nabízí kompletní občanskou vybavenost v docházkové vzdálenosti nachází se zde škola, školka, pošta, supermarket i další obchody a služby. V blízkosti je také zastávka MHD s dobrým spojením do centra města. Byt je vhodný jak pro vlastní bydlení, tak i jako investiční příležitost k následnému pronájmu. Kalkulace rozpočtu nutná k dokončení rekonstrukce k dispozici u makléře. Rozpočet za rekonstrukci není promítnutý do ceny nemovitosti. Cena za nemovitost je konečná - včetně provize, DPH, včetně poplatků, včetně právního servisu. Neváhejte nás kontaktovat pro více informací či sjednání osobní prohlídky. <a href="https://www.eurobydleni.cz/byty/1_1/praha-9/obec-hloubetin/pronajem/"><strong>Pronájem bytu 1+1 Praha 9, Hloubětín</strong></a>




Prodej bytu 3+1 České Budějovice na Eurobydleni.cz


Nahoru