Makléř: Ilona Vazačová
Telefon: 739 244 ...
E-mail: vazacov ...
Zobrazit celý kontaktTelefon: 739 244 193
E-mail: vazacova@justo.cz
Nemovitost nabízí
JUSTO Česká republika
Korunní 2569/108, 101 00 Praha 10
Zobrazit kontakt na RK
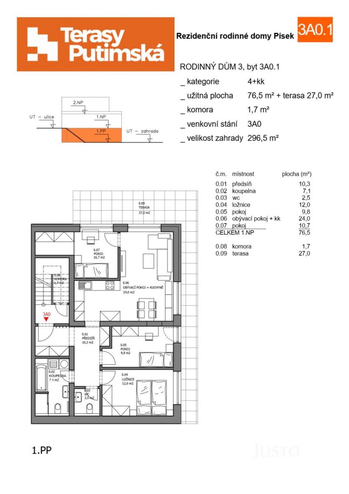
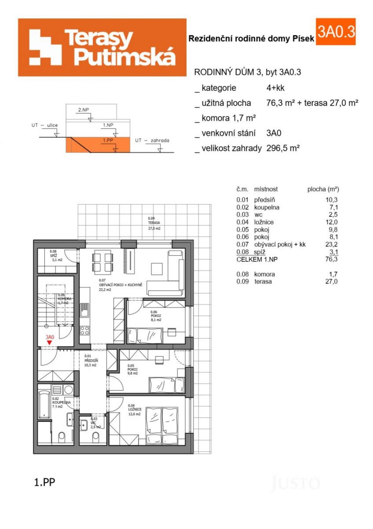
Novostavba moderní byt ve výstavbě | 76,3 m + terasa 34,5m + komora 1, 7 m + zahrada 296,5 m + parkovací stání V zastoupení developera nabízíme k prodeji moderní bytovou jednotku o dispozici 4+kk, která vzniká v rámci projektu Terasy Písek II. etapa (Putimská Vysoká). Byt se nachází v 1. nadzemním podlaží domu, vstup do domu je z úrovně 2. nadzemního podlaží, do bytu tedy vedou jedny schody dolů. Dispozice a výměry: podlahová plocha bytu: 76,3 m terasa: 27 m komora: 1,7 m zahrada: 296,5 m venkovní parkovací stání v ceně Byt je koncipován s důrazem na praktické využití prostoru, světlo a přímý kontakt s exteriérem. V případě tohoto bytu bylo myšleno na početnější rodinu nebo majitele, který potřebuje více místností. Architekt navrhl dvě možnosti s dispozicí 4+kk a jednu variantu bytu 3+kk, kterou můžete změnit na 4+kk v průběhu času. Z obývací části je vstup na prostornou terasu orientovanou do zeleně, která dál navazuje na vlastní zahradu. Standard zahrnuje moderní provedení koupelny, přípravu pro kuchyňskou linku dle výběru budoucího vlastníka, podlahové vytápění a kvalitní stavební materiály odpovídající současným energetickým a technickým požadavkům. Lokalita Putimská Vysoká: Putimská Vysoká představuje jednu z nejžádanějších rezidenčních částí Písku tiché, bezpečné a plně etablované místo pro klidné rodinné bydlení. Zástavbu zde tvoří převážně nízkopodlažní rodinné domy a menší bytové domy, které jsou obklopeny vzrostlou zelení. Lokalita nabízí výjimečnou kombinaci klidu, soukromí a dostupnosti města do centra Písku se dostanete autem během pár minut, v pěší či cyklistické vzdálenosti se nachází supermarkety, zastávky MHD, vlakové i autobusové nádraží, školy i příroda. Projekt Terasy Písek kvalita s lokálním podpisem: Projekt navazuje na úspěšnou první etapu Terasy K Lipám, která byla dokončená v roce 2022 na Hradišti. Za výstavbou stojí renomovaná písecká stavební společnost, která klade důraz na precizní zpracování, kvalitní materiály a dlouhodobou hodnotu nemovitostí. Byty jsou navrženy tak, aby spojovaly moderní architekturu s příjemnou městskou atmosférou a blízkostí přírody. Shrnutí hlavních výhod: novostavba ve výstavbě, možnost úprav dle přání klienta prostorná terasa s přímou návazností na zahradu, na zahradě je možné zbudovat zahradní domek, pro uložení všeho potřebného parkovací stání v ceně moderní energeticky úsporné bydlení oblíbená a klidná lokalita Putimská Vysoká <a href="https://www.eurobydleni.cz/pozemky/louka/praha-vychod/obec-kamenice/prodej/"><strong>Prodej louky Kamenice</strong></a>
Byt, 4+kk, prodej, Dolní, Hradiště, Písek
Novostavba moderní, mezonetový byt ve výstavbě | 99 m + terasa 46 m + zahrada 326 m + parkovací stání. V zastoupení developera nabízíme k prodeji…
Prodej bytu 4+kk, 87 m2, Písek, ul. Pražská
Nabízíme k prodeji prostorný byt 4+kk o užitné ploše 87 m2 v klidné části obce Pražské Předměstí, katastrální území Písek. Byt se nachází ve druhém…
Prodej bytu 4+kk Písek na Eurobydleni.cz